新戈派,相贯线新割法,独创一派!
一、新戈派经典机型简介简介
针对客户群:
1、需要切割管径范围广
2、需要切割模型多样
二、切割模型

三、选型步骤
第一步:根据图一选择您需要的功能代号。
R表示07号模型;T表示01号模型;X表示07和01号模型
若还有其他模型需求,可根据图二选择相应的软件包。
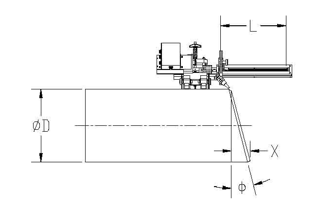
第二步:选择横向可移动距离(L),如图三。
L可选值:200mm、400mm、600mm、800mm、1000mm(定制)、1200mm
(定制)

第三步:选择切割方式,A为火焰切割或P为等离子切割。
第四步:管径切割范围
A:320mm-400mm J:1040mm-1160mm
B:400mm-495mm K:1120mm-1250mm
C:495mm-550mm L:1219mm-1310mm
D:550mm-680mm M:1270mm-1480mm
E:630mm-770mm N:1410mm-1500mm
F:730mm-830mm O:1450mm-1595mm
G:810mm-915mm P:1520mm-1675mm
H:915mm-1020mm V:320mm-1480mm
I:1000mm-1100mm X:320mm-3000mm
举例说明:
1、R40A-A有弯头截管斜切功能,最大横向移动距离为400mm,采用火焰切
割形式,切割管外径范围为320mm-400mm。
2、X60A-BCD有弯头斜切功能及相贯线切割功能,最大横向移动距离为
600mm,采用火焰切割形式,切割管外径范围为400mm-680mm。
四、新戈派其他分类
五、联系我们
电话:021-61350141
传真:021-60919397
邮箱:sales@sunbowtec.com
地址:上海市闵行区都市路399弄580号
|